Torna alla lista

CONDAMINE | PETREL | 3 ROOMS

Port / Le Petrel

contattare l'agenzia Monaco Properties

Vendita

rif VM0822-31_260305-102

Specificazioni

Prezzo di vendita4 500 000 €

Tipologia di immobileAppartamento

N° di locali3

Camera(re)2

Bagno(i)2

Area totale95 Mq

Piano2

Scarica in formato PDF

Descrizione

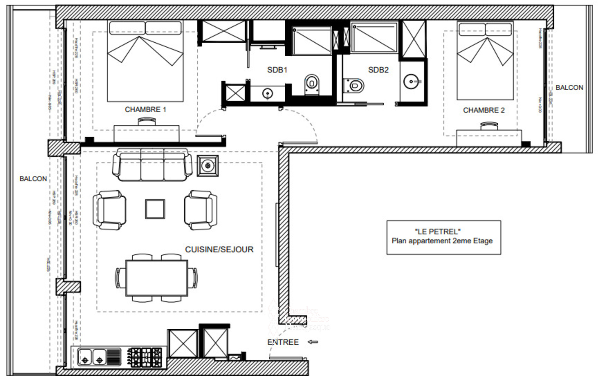
Un bellissimo appartamento di 3 stanze ad uso misto (abitazione o ufficio), situato al 1° piano (altezza di un 2° livello) dell'edificio 'Le Petrel', una residenza moderna con ascensore, idealmente posizionata sull'unica strada pedonale del Principato.
Luminoso, ordinato, delicato - a pochi passi dal Porto Ercole, questo appartamento è stato completamente rinnovato utilizzando materiali di alta gamma e una cura particolare nelle rifiniture.
Si compone di un ingresso, un soggiorno e una cucina aperta con terrazza, e due camere da letto e due bagni con terrazze. 

Monaco Properties

T. +377 97 97 33 97 info@mpmonaco.com https://www.monacoproperties.mc Vedi tutte le proprietà

Galleria di foto

Questo documento non rappresenta un'offerta o un contratto. Tutte le misure, superfici e distanze sono approssimative. Le descrizioni e planimetrie sono date a titolo indicativo e la loro esattezza non è garantita. Le fotografie mostrano solo alcune parti della proprietà alla data in cui son state fatte. L'offerta di Vendita è valida salvo in caso di Vendita/affitto, ritiro dalla Vendita/affito o cambio del prezzo o altra condizione, senza avviso preliminare.